NEW

守牧町51GIMUCO 0000B

33万円(0.73万円/坪)

管理 / 共益費 -

愛知県名古屋市守山区守牧町51

ガイドウェイバス志段味線「金屋」駅徒歩5分

名鉄瀬戸線「守山自衛隊前」駅徒歩12分

中央線「新守山」駅徒歩12分

賃料 / 坪単価
33万円 / 0.73万円
敷金(保証金)
99万円(-)
所在地
愛知県名古屋市守山区守牧町51
交通

ガイドウェイバス志段味線金屋」駅 徒歩5分

名鉄瀬戸線守山自衛隊前」駅 徒歩12分

中央線新守山」駅 徒歩12分

管理 / 共益費
-
礼金
66万円
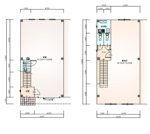
建物面積
45.01坪(148.80㎡)
築年月
2026年2月(新築)

物件の特徴

  • TVモニタ付きインターホン

セールスポイント

守牧町51GIMUCO:ガイドウエイ志段味金屋駅駅にも近くて便利。設備・環境ともに良い33万円の物件です。敷地内駐車場に空きありなので、車のいたずらにも遭いにくいです。駅まで徒歩5分の立地が魅力的な、利便性の高い物件です。室内設備はエアコン2台・24時間換気システムなど大変充実しております。店舗移転におススメですが、重飲食不可です。

ポイント

OAフロア エアコン 冷房 当社管理物件 駅徒歩5分以内

担当者のコメント

村上 光昭

こだわりポイント満載の守牧町51GIMUCO。周辺に駅が二つあり、交通の利便性が高いです。周辺には、徒歩5分で利用できる駅があります。賃料は33万円です。敷地内の駐車場に空きがあるので、是非ご利用ください。室内設備は電動シャッター・OAフロアなど豊富に揃っており、過ごしやすいお部屋になっております。重飲食不可の為、ご確認よろしくお願いします。

基本情報

保証金
-
敷引 / 償却
33万円 / -
建物面積
148.80㎡
建ぺい率
60%
容積率
200%
接道状況
一方(南 公道 6.0m)
所在階 / 階建て
- / 2階建
建物構造
鉄骨造
築年月
2026年2月(新築)
種別
事務所
契約期間
2年
用途地域
第一種住居/第二種住居
保証会社 / 料金
必加入 / Casa
初回:総賃料の50%(年間更新料:総賃料の10%) 月額:口振手数料330円
初回:総賃料の50%(年間更新料:総賃料の10%) 月額:口振手数料330円
駐車場 / 月額
空有 / 0円 駐車スペースは最大縦列2台2列可能
現況
完成済み
入居可能時期
即時
その他条件
口座振替手数料:330円(月額)
取引条件の
有効期限
2026年04月24日

設備条件

設備条件
  • 事務所可 / 法人可 / OAフロア / 仲介手数料無料 / 重飲食不可 / 公営水道 / 公共下水 / 24時間換気システム / 電気有 / IHクッキングヒーター / コンロ1口 / トイレ2ヶ所 / エアコン / TVモニタ付インターホン / エアコン2台

その他

賃貸区分
一般
総戸数
2戸
更新料
3.3万円
保険会社 / 料金
無  / -
取引態様
仲介
物件番号
101614418
情報更新日
2026年04月16日
次回更新予定日
2026年04月24日
取扱会社
  • 株式会社アップルーム 小牧店
  • 愛知県小牧市常普請3丁目200 
  • TEL:0568-74-7730
  • 愛知県知事 (2) 第24458号
備考
「守牧町51GIMUCO」のここがイチオシ。駅が周辺に2つあるので行動範囲が広がります。周辺には、徒歩5分で利用できる駅があります。賃料は33万円です。駐車スペースも空いているので、車をお持ちの方は検討してみてはいかがですか。室内設備はOAフロア・電動シャッターなどが揃っており、とても充実しています。重飲食不可の為、ご確認よろしくお願いします。

周辺施設

  • B&Dドラッグストア 新守山店の画像

    ドラッグストア

    B&Dドラッグストア 新守山店

    384m(5分)

  • ファミリーマート 守山大牧町店の画像

    コンビニエンスストア

    ファミリーマート 守山大牧町店

    491m(7分)

  • V・drug 新守山店の画像

    ドラッグストア

    V・drug 新守山店

    569m(8分)

  • はま寿司 新守山店の画像

    寿司

    はま寿司 新守山店

    874m(11分)

  • ドン・キホーテアピタ新守山店の画像

    ディスカウントショップ

    ドン・キホーテアピタ新守山店

    916m(12分)

  • H2Oの画像

    美容室

    H2O

    934m(12分)

  • やきにく新香園の画像

    焼肉

    やきにく新香園

    964m(13分)

  • セブンイレブン 名古屋大永寺町店の画像

    コンビニエンスストア

    セブンイレブン 名古屋大永寺町店

    966m(13分)

  • ほっともっと 幸心1丁目店の画像

    その他

    ほっともっと 幸心1丁目店

    981m(13分)

  • 宮崎クリニックの画像

    内科

    宮崎クリニック

    991m(13分)

  • 創庫生活館守山幸心店の画像

    その他

    創庫生活館守山幸心店

    1011m(13分)

  • ミニストップ 名古屋幸心店の画像

    コンビニエンスストア

    ミニストップ 名古屋幸心店

    1100m(14分)

よく見られている物件

  1. 守牧町51GIMUCO

    名古屋市守山区守牧町

    - (148.80㎡)

    33万円

  2. 印場元町5-2GIMUCO

    尾張旭市印場元町5丁目

    - (199.80㎡)

    39.5万円

  3. 上橋町60GIMUCO

    名古屋市西区上橋町

    - (159.14㎡)

    34.1万円

  4. 二重堀林先 倉庫付事務所

    小牧市大字二重堀

    - (153.00㎡)

    20.46万円

守牧町51GIMUCO

守牧町51GIMUCO

33万円

-

45.01坪(148.80㎡)

お気軽にお問い合わせください

LINEからお問い合わせ 無料お問い合わせ

株式会社アップルーム 小牧店

0568-74-7730

10:00~18:30

(休:不定休)